Vous êtes doctorant ou doctorante dans une unité de recherche de Bordeaux Neurocampus ? Voici quelques informations pratiques pour votre soutenance de thèse.
Pour toute question d’ordre administratif, merci de contacter l’école doctorale.
Trouver une salle / réserver
Centre Broca
– Réservation sur : carf.u-bordeaux.fr/
CARF (ex CGFB)
– Réservation sur carf.u-bordeaux.fr/
– Contact : Catherine Duret
Neurocentre Magendie – salle de conférence
– Voir auprès de l’agent d’accueil (05 57 57 36 00)
– par e-mail :
BBS – auditorium
– Vérification de la disponibilité sur l’ENT
– par email :
Pour tout autre lieu
Merci de contacter Mme Sanja Skunca
Tél. 05 57 57 16 67
Attention : le Centre Broca n’est pas disponible pour votre soutenance si vous ne préparez pas votre thèse dans une de nos unités de recherche.
Répétition ?
L’amphi du Centre Broca ne doit pas être réservé longtemps à l’avance pour répéter votre soutenance. Si vous constatez qu’il est libre une semaine plus tôt, vous pouvez le réserver.
Matériel / en cas de visio
Dans le cas d’une soutenance à distance (public et/ou jury) :
– Les amphis du BBS et du CARF sont équipés d’une barre de visioconférence
– L’amphi Broca est équipé d’un système de visioconférence assez complexe. Entrainez-vous avant et surtout venez au moins 30 minutes avant votre thèse, le jour J.
Points clés :
– Pensez à avoir une connexion Eduroam sur votre ordinateur !
Votre soutenance est au Centre Broca ?
Il est indispensable de tester votre matériel et d’arriver tôt pour connecter le Zoom.
Plus d’informations auprès de Arnaud Rodriguez ou Julia Goncalves qui vous fourniront la documentation adéquate.
Autres contacts :
– IMN : Claire Delattre
– IINS : Amélie Di Bella
Un problème technique le jour J ?
Le service audiovisuel du campus Carreire peut vous accompagner :
Leur numéro de téléphone mobile est noté dans le local technique.
Contacts
IMN : Claire Delattre
IINS : Nolwenn Cloarec
Autres unités : Arnaud Rodriguez
Annoncer votre soutenance
Votre soutenance sera annoncée sur notre agenda.
Merci d’écrire à Arnaud Rodriguez et à la personne en charge de la communication dans votre unité, en fournissant les éléments suivants :
- Date et heure de la soutenance
- Lieu de la soutenance (ou lien de visioconférence éventuel)
- Langue de la soutenance
- Titre (en français et en anglais)
- Résumé et mots clés (en français et en anglais)
- Vos publications ou une sélection
- Composition du jury
- Un portrait photographique. Arnaud Rodriguez peut le faire.
Pot de thèse
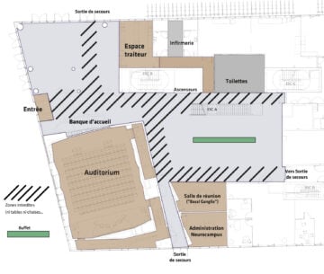
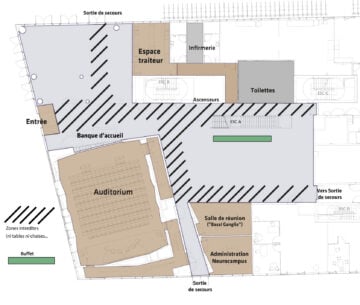
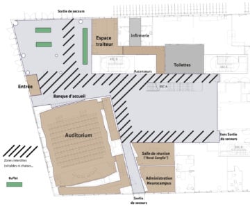
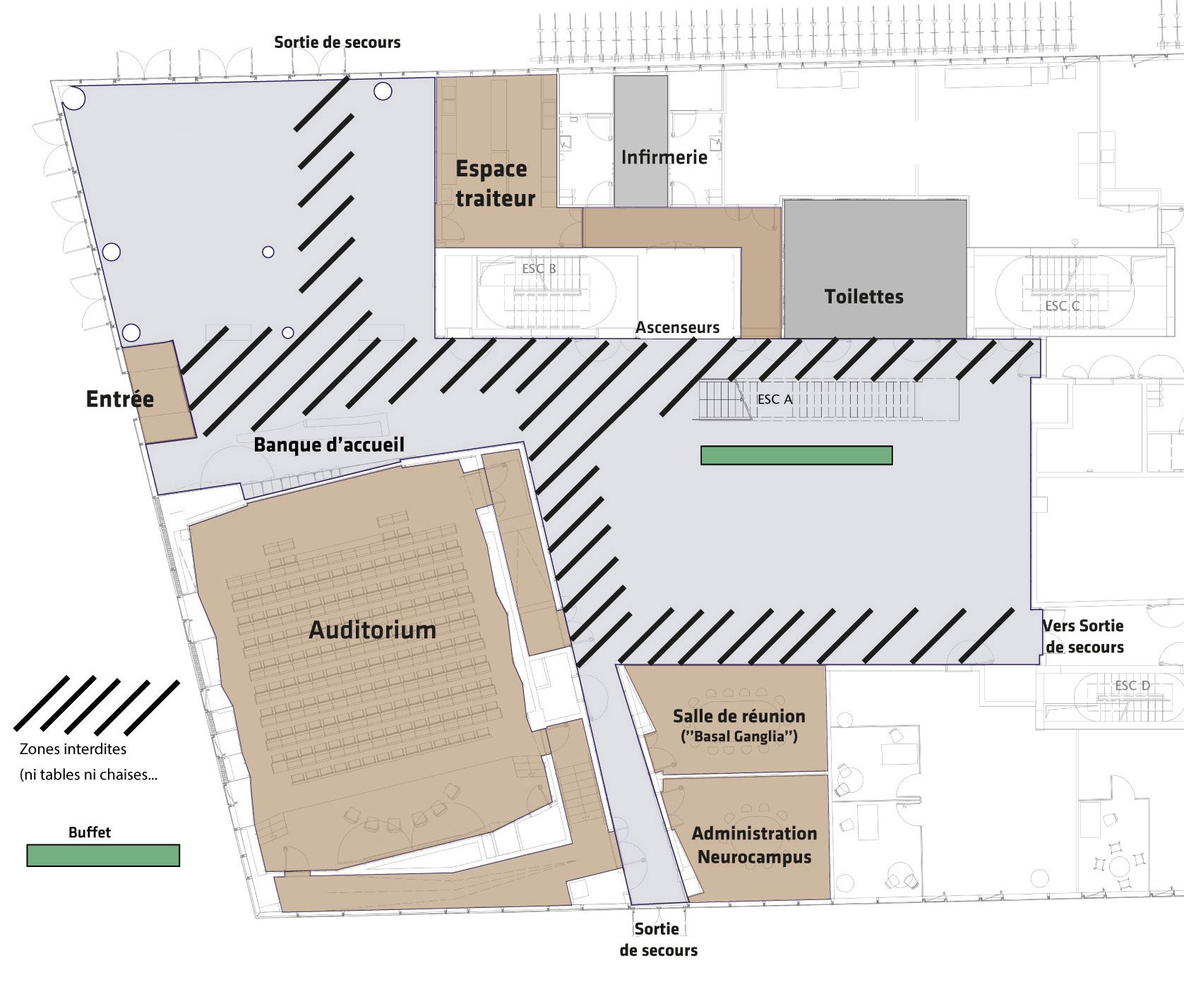
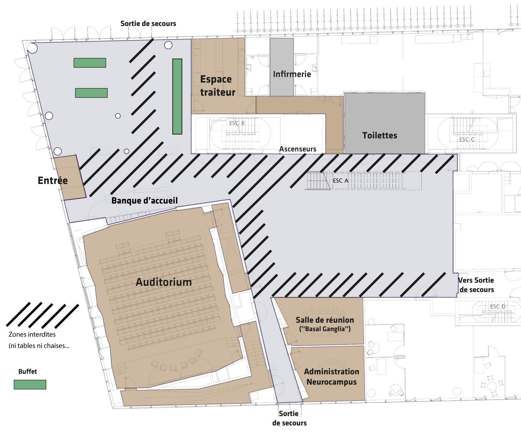
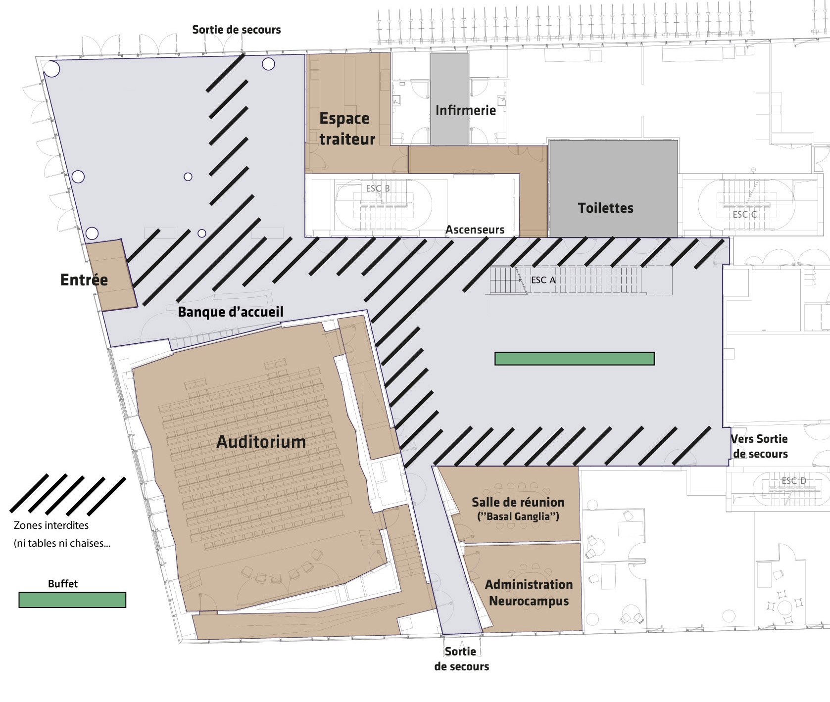
Au centre Broca :
– Vous devez réserver l’atrium ou l’espace restauration
> IMN, IINS : via http://grr-neuro.u-bordeaux.fr
> Autres unités Neurocampus : le préciser sur la réservation de l’amphi
– Nous vous conseillons d’utiliser de préférence l’espace restauration.
– En cas d’installation dans l’atrium, des tables sont à votre disposition.
– Les frigos de l’espace traiteur sont à votre disposition. Merci d’y noter votre nom !
Votre pot de thèse doit se dérouler aux horaires habituels d’ouverture.
Une déclaration d’événement doit être envoyée au PCSI deux semaines avant le pot de thèse. Si vous ne l’avez pas reçue, merci de la demander à Fatiha Ducourneau.
Compléter ce document page 2 avec le plan correspondant :
Merci de bien respecter les zones pour installer les tables.
> Après le pot, merci de :
– bien vider les frigos (tolérance jusqu’au lendemain)
– nettoyer les espaces !
– réinstaller les tables ou les canapés colorés tels que vous les avez trouvés.
Pour les autres lieux
Se renseigner auprès des agents d’accueil


